Book A FREE Valuation
Get A Mortgage Deal


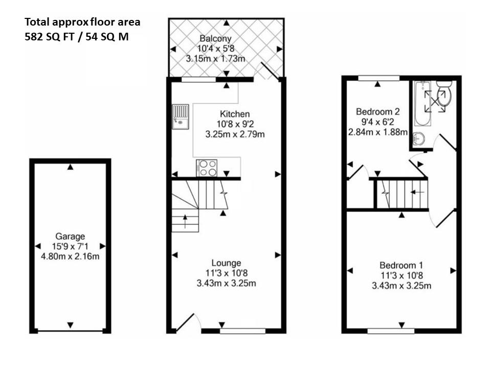
Price £325,000 Available
  • Duplex apartment
  • Living room
  • Newly fitted kitchen with large balcony off
  • One double bedroom
  • One single bedroom
  • Bathroom
  • Allocated parking
  • Garage
  • Short walk to the town centre & station
  • NO UPPER CHAIN

DESCRIPTION

We are delighted to offer for sale this duplex apartment with garage and parking just a short walk to the town centre and train station.

Accommodation is of a good size throughout and comprises: spacious living room with stairs to the upper floor, fully fitted modern kitchen with large balcony off with gorgeous woodland views, one double bedroom, one single bedroom and a bathroom, with a bath.

Outside, there is convenient allocated parking in front and an integral garage.

Lease length: 87 years
Ground rent: £200.00 per annum
Service charge: £1292
Council tax band: C


LOCATION

Amersham has two clearly distinguishable parts. The ancient market town (Old Amersham) is quietly alluring. It retains its olde English look and deservedly attracts visitors all year round.

Amersham-on-the-Hill (known as top Amersham to locals) has the feel of a steadily developing modern town. It provides the convenient amenities today's population demands.

The trains from Amersham run right into Baker Street/Marylebone and the roads quickly lure you out towards the open country with its scattering of farms, riding stables, tea shops and footpaths.

The Tuesday market and annual French and Italian summer markets are a focal point in the town's calendar.

A pleasantly mixed-age population, Amersham is an increasingly popular choice for families with young children. Parenting becomes significantly easier and children have the childhood they deserve in this ever evolving town.



Notice
1. We endeavour to make our sales particulars as accurate as possible, however, they are only a guide to the property and if there is anything in particular which is important to you, please contact Hadlands who can investigate this for you.

2. MONEY LAUNDERING & SANCTION REGULATIONS: purchasers will be asked to provide identification documentation when showing an interest in any of Hadlands properties. We would ask for your co-operation to ensure there is no delay in approving and progressing a sale.

3. The measurements given are for guidance only and are not to be considered accurate.

4. Services: Please note, no tests of the appliances, property services, or equipment in this property have taken place. We would strongly advise prospective buyers to instruct their own survey before purchase.

5. ALL PARTICULARS PROVIDED BY HADLANDS do not constitute or form part of any contract or offer. The details should be independently checked by any prospective buyers or tenants. Neither Hadlands or any of its employers has any authority to make or give any representation of warranty in relation to this property.


/// moth.sizes.angel is the what3words address for the best entrance. what3words has given every 3 metre square in the world a unique combination of 3 random words.

Floor Plan
EER Chart

The Energy-Efficiency Rating is a measure of a home's overall efficiency. The higher the rating, the more energy-efficient the home is, and the lower the fuel bills are likely to be.

EIR Chart

The Environmental Impact Rating is a measure of a home's impact on the environment in terms of carbon dioxide (C02) emissions - the higher the rating, the less impact it has on the environment.

Utility Supply Type
Electric Mains Supply
Gas None
Water Mains Supply
Sewerage None
Broadband None
Telephone None

Other Items Description
Heating Not Specified
Garden/Outside Space Yes
Parking Yes
Garage Yes

Broadband Coverage Highest Available Download Speed Highest Available Upload Speed
Standard 17 Mbps 1 Mbps
Superfast 80 Mbps 20 Mbps
Ultrafast 1800 Mbps 900 Mbps

Mobile Coverage Indoor Voice Indoor Data Outdoor Voice Outdoor Data
EE Likely Likely Enhanced Enhanced
Three Likely Likely Enhanced Enhanced
O2 Enhanced Likely Enhanced Enhanced
Vodafone Likely Likely Enhanced Enhanced

Broadband and Mobile coverage information supplied by Ofcom.


marker icon